Office For Sale Fareham
PROPERTY ID: 141557
PROPERTY TYPE
Office
STATUS
Available
SIZE
2,515 sq.ft
Key Features
Property Details
The site is located within North Boarhunt, a village situated approximately 7 and a half miles north west of Portsmouth a major regional port, a hub for commercial activity and forms part of the ever-expanding south coast conurbation.
The site is positioned on Trampers Lane, running in a north / south direction with the local area characterized by views out over open county side and woodland. Nearby properties include residential dwellings and Boarhunt Parish Hall.
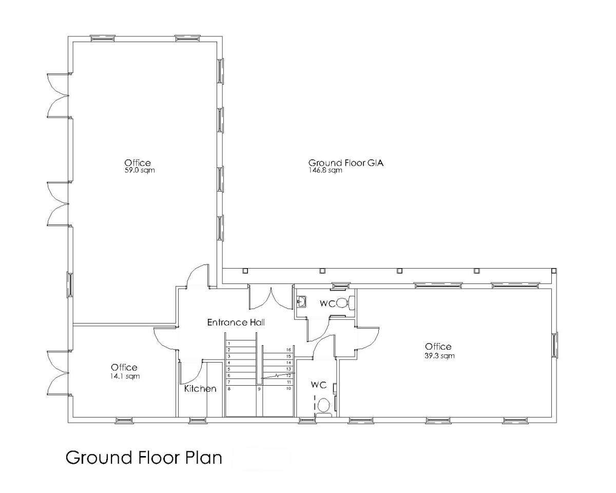
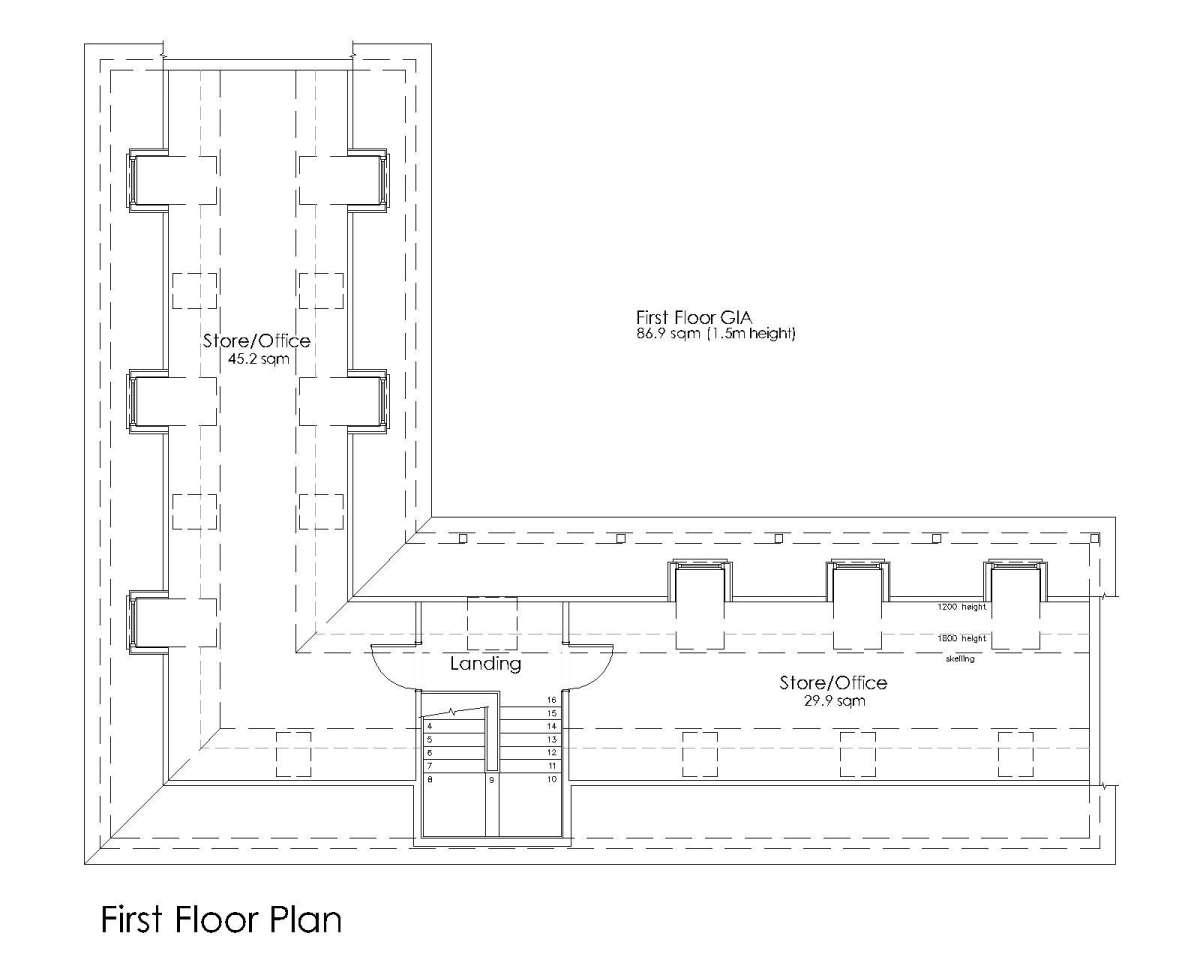
The Site Is Generally Level And Is Predominately Laid To Shingle And Grass With Mature Vegetation Around The Site. Please Refer To The Brochure For Plans.
The Site Is Located Within North Boarhunt, A Village Situated Approximately 7 And A Half Miles North West Of Portsmouth A Major Regional Port, A Hub For Commercial Activity And Forms Part Of The Ever-expanding South Coast Conurbation.
The Site Is Positioned On Trampers Lane, Running In A North / South Direction With The Local Area Characterized By Views Out Over Open County Side And Woodland. Nearby Properties Include Residential Dwellings And Boarhunt Parish Hall.
For Sale
Development Opportunity
Planning Consent Granted
Two Storey Office Building

















































































































